深圳国际会展中心是深圳市委市政府投资建设的重大项目,是集展览、会议、活动(赛事、演艺等)、餐饮、购物、办公、服务等于一体的超大型会展综合体,整体建成后,室内总展览面积可达50万平方米,将成为全球规模最大的展馆。 国际会展中心一期项目于2016年9月开工建设,2019年7月全面建成投入使用,奇信股份承接深圳国际会展中心(一期)装修工程二标段,施工范围为北登录大厅及相应地下室装修。北登录大厅是国际会展中心两个主入口之一,是实现参展、观展、参会等场馆功能的“第一道大门”,是项目最受关注的核心区域标段,含有众多双曲面造型结构、新工艺、大平面和高空作业,其中天花主要为双曲面、波浪形和蜂窝铝板吊顶;墙面主要为多曲面木纹覆膜铝方通、冲孔铝板和干挂木纹大理石,部分采用阳极氧化铝板和木饰面;地面主要为花岗岩和PVC地板,部分采用瓷砖和地毯。 ▲登录大厅天花:波浪线铝板造型 ▲报告厅外围内幕墙:木纹覆膜多曲面铝方通 该项目工程体量大、工期紧且工艺造型复杂,技术难度高。项目进场施工后,奇信股份项目组利用BIM技术对负责的装饰工程区域进行深化设计、质量管理、进度管理、成本管理等方面的应用,取得了显著成效。 设计阶段BIM技术应用 1.可视化设计 通过BIM将整体的空间模型搭建出来,真实直观地反映实际情况并提供可视化、具体化的信息数据,同时在模型上对方案进行全面形象地比较和选取,从而提升了工效与准确性。 ▲北登录大厅BIM模型 2.绘制管理 基于BIM模型的联动性将项目整体图纸按统一的文件信息进行绘制修改,省去了各个参与方对结构图纸的理解,减少了绘制内容,加快了修改效率。 ▲北登录大厅入口BIM模型 ▲走道铝方通墙面BIM模型 3.管线综合 施工前,先利用BIM技术进行图纸“预装配”,直观地把设计图纸上的问题全部暴露出来,制定解决方案,对管线综合图进行优化和调整,解决装饰专业与机电、暖通等专业位置冲突问题,以确保施工过程有条不紊进行。 4.碰撞检查 从建模开始,将装饰模型与机电、土建、钢结构及幕墙等专业模型进行碰撞检查,从而优化处理发现的冲突部位,为后续深化设计、施工等工作的顺利进行奠定了基础。 调整前 调整后 ▲装饰模型与机电模型进行碰撞检查 调整前 调整后 ▲装饰模型与钢结构模型进行碰撞检查 施工阶段BIM技术应用 (一)多曲面铝板天花吊顶 1.精准测量 前期通过进行现场三维扫描采集1:1真实测量数据,利用BIM模型及现场采集到的特征点数据将现场坐标系与模型和图纸进行匹配,方便后期施工运用。 安装时,在BIM模型上创建坐标系并设立控制点,确定放样点,并将所有的放样点导入手持电脑软件中,指挥放样机器人发射红外激光照准现实点位,从而将BIM模型精确地反应到施工现场。 2.深化排版 该项目铝板天花深化BIM模型由复杂曲面构建而成,复杂曲面可划分为基本曲面和连接曲面两种,通过合理设计曲面的生成顺序及连接曲面的生成方式来进行分别构造。其中基本曲面通过测量的数据生成,由其控制曲线调整曲面精度,再通过倒角法和直接建模法产生连接曲面,连接相应的基本曲面共同构成吊顶BIM初步模型。最后结合施工初步模型及现场测量数据,构建出吻合现场实际情况的BIM面域模型,并依据设计分缝原则对下单模型处理分缝。 ▲登录大厅铝板天花深化BIM模型 3.材料下单及加工 在曲面模型建立、修正的基础上对铝板下单,将单元板块加工料单数据提供给工厂并进行数控加工,精度高且浪费少,而后将生产出来的单元板块与单元板块模型进行配对,使其保持高度一致性,确保加工精度。 ▲铝板加工的数据参数和参数详图 4.技术交底 采用BIM 技术对关键部位及复杂工艺进行建模,然后对模型进行反复预演模拟,找出最优施工方案,利用三维可视化形象直观、准确、快速地对施工管理人员和工人进行交底,既保证了工程质量和安全,又避免返工和窝工。 5.定位安装 前期模型调整完毕,完全匹配现场后即进行安装定位工作,直接在模型中提取相关数据即可直接在现场施放,十分快捷精准。登录大厅建筑造型如同冲锋方舟,完成后的波浪形天花则宛如流动的海水,点缀整个空间,成为改善视野效果的点睛之笔。 ▲北登录大厅波浪线造型铝板天花完成效果 (二)多曲面铝方通墙面 1.深化排版 多曲面铝方通墙面的图纸,设计单位只提供一个基准平面的轮廓线和纵剖面线,图纸深化时,顺着平面位置线旋转一圈,旋转后形成三维的多曲面体初步模型后,再结合现场实测实量数据、构建吻合现场情况的BIM模型。在各方确认后的模型基础上,根据多曲面曲率变化的规律,按照统一尺寸的原则进行单元板块分隔排版。 ▲多曲面铝方通墙面深化 2.材料下单及加工 材料下单过程数字化,相应编号和坐标数据等可以随时查看,便于后期放线和定位安装。 ▲铝方通材料数字化下单 将从模型中提取的构件加工数据信息直接导入到精密数控加工机械,自动进行无误差的自动化成形加工,确保了加工和安装精度。 3.工艺模拟 针对较复杂、样式多样的构造部位,通过三维可视化工艺模拟交底可以更为精确地指导施工工艺,更加清楚的展现结构系统搭建,更为明确的展现各部分的衔接与施工的先后顺序,使现场与施工图纸保持高度一致性,减少返工和整改。 ▲多曲面铝方通施工工艺模拟 4.定位安装 根据BIM模型提供的坐标数据,利用放样机器人,在现场把点位标示出来,指导工人进行铝方通构件的调平和连接,完成现场拼装。 ▲多曲面铝方通定位安装 ▲多曲面铝方通墙面实际拼装效果 奇信股份一直以来高度重视BIM技术的发展,BIM团队组建于2015年,致力于BIM技术的开发、应用和服务等工作,拥有多名经验丰富、专业齐备的技术工程师。BIM团队在投标、设计和施工等阶段提供BIM建模、虚拟仿真模拟、工程量精确统计、施工进度模拟、施工工艺模拟和三维管线综合等综合服务。除深圳国际会展中心装修工程应用BIM技术外,奇信股份还在援越南越中友谊宫项目装饰装修工程、深圳汇德大厦一期精装修专业分包工程、前海合作区哈罗国际学校精装修工程等多个项目中应用BIM技术,皆取得了优异成绩。
深圳国际会展中心是深圳市委市政府投资建设的重大项目,是集展览、会议、活动(赛事、演艺等)、餐饮、购物、办公、服务等于一体的超大型会展综合体,整体建成后,室内总展览面积可达50万平方米,将成为全球规模最大的展馆。
国际会展中心一期项目于2016年9月开工建设,2019年7月全面建成投入使用,奇信股份承接深圳国际会展中心(一期)装修工程二标段,施工范围为北登录大厅及相应地下室装修。北登录大厅是国际会展中心两个主入口之一,是实现参展、观展、参会等场馆功能的“第一道大门”,是项目最受关注的核心区域标段,含有众多双曲面造型结构、新工艺、大平面和高空作业,其中天花主要为双曲面、波浪形和蜂窝铝板吊顶;墙面主要为多曲面木纹覆膜铝方通、冲孔铝板和干挂木纹大理石,部分采用阳极氧化铝板和木饰面;地面主要为花岗岩和PVC地板,部分采用瓷砖和地毯。
▲登录大厅天花:波浪线铝板造型
▲报告厅外围内幕墙:木纹覆膜多曲面铝方通
该项目工程体量大、工期紧且工艺造型复杂,技术难度高。项目进场施工后,奇信股份项目组利用BIM技术对负责的装饰工程区域进行深化设计、质量管理、进度管理、成本管理等方面的应用,取得了显著成效。
设计阶段BIM技术应用
1.可视化设计
通过BIM将整体的空间模型搭建出来,真实直观地反映实际情况并提供可视化、具体化的信息数据,同时在模型上对方案进行全面形象地比较和选取,从而提升了工效与准确性。
▲北登录大厅BIM模型
2.绘制管理
基于BIM模型的联动性将项目整体图纸按统一的文件信息进行绘制修改,省去了各个参与方对结构图纸的理解,减少了绘制内容,加快了修改效率。
▲北登录大厅入口BIM模型 ▲走道铝方通墙面BIM模型
3.管线综合
施工前,先利用BIM技术进行图纸“预装配”,直观地把设计图纸上的问题全部暴露出来,制定解决方案,对管线综合图进行优化和调整,解决装饰专业与机电、暖通等专业位置冲突问题,以确保施工过程有条不紊进行。
4.碰撞检查
从建模开始,将装饰模型与机电、土建、钢结构及幕墙等专业模型进行碰撞检查,从而优化处理发现的冲突部位,为后续深化设计、施工等工作的顺利进行奠定了基础。
调整前 调整后
▲装饰模型与机电模型进行碰撞检查
▲装饰模型与钢结构模型进行碰撞检查
施工阶段BIM技术应用
(一)多曲面铝板天花吊顶
1.精准测量
前期通过进行现场三维扫描采集1:1真实测量数据,利用BIM模型及现场采集到的特征点数据将现场坐标系与模型和图纸进行匹配,方便后期施工运用。
安装时,在BIM模型上创建坐标系并设立控制点,确定放样点,并将所有的放样点导入手持电脑软件中,指挥放样机器人发射红外激光照准现实点位,从而将BIM模型精确地反应到施工现场。
2.深化排版
该项目铝板天花深化BIM模型由复杂曲面构建而成,复杂曲面可划分为基本曲面和连接曲面两种,通过合理设计曲面的生成顺序及连接曲面的生成方式来进行分别构造。其中基本曲面通过测量的数据生成,由其控制曲线调整曲面精度,再通过倒角法和直接建模法产生连接曲面,连接相应的基本曲面共同构成吊顶BIM初步模型。最后结合施工初步模型及现场测量数据,构建出吻合现场实际情况的BIM面域模型,并依据设计分缝原则对下单模型处理分缝。
▲登录大厅铝板天花深化BIM模型
3.材料下单及加工
在曲面模型建立、修正的基础上对铝板下单,将单元板块加工料单数据提供给工厂并进行数控加工,精度高且浪费少,而后将生产出来的单元板块与单元板块模型进行配对,使其保持高度一致性,确保加工精度。
▲铝板加工的数据参数和参数详图
4.技术交底
采用BIM 技术对关键部位及复杂工艺进行建模,然后对模型进行反复预演模拟,找出最优施工方案,利用三维可视化形象直观、准确、快速地对施工管理人员和工人进行交底,既保证了工程质量和安全,又避免返工和窝工。
5.定位安装
前期模型调整完毕,完全匹配现场后即进行安装定位工作,直接在模型中提取相关数据即可直接在现场施放,十分快捷精准。登录大厅建筑造型如同冲锋方舟,完成后的波浪形天花则宛如流动的海水,点缀整个空间,成为改善视野效果的点睛之笔。
▲北登录大厅波浪线造型铝板天花完成效果
(二)多曲面铝方通墙面
1.深化排版
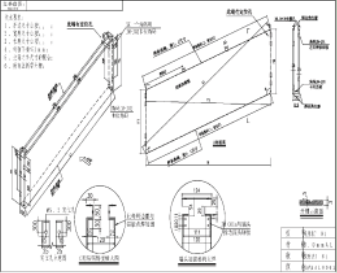
多曲面铝方通墙面的图纸,设计单位只提供一个基准平面的轮廓线和纵剖面线,图纸深化时,顺着平面位置线旋转一圈,旋转后形成三维的多曲面体初步模型后,再结合现场实测实量数据、构建吻合现场情况的BIM模型。在各方确认后的模型基础上,根据多曲面曲率变化的规律,按照统一尺寸的原则进行单元板块分隔排版。
▲多曲面铝方通墙面深化
2.材料下单及加工
材料下单过程数字化,相应编号和坐标数据等可以随时查看,便于后期放线和定位安装。
▲铝方通材料数字化下单
将从模型中提取的构件加工数据信息直接导入到精密数控加工机械,自动进行无误差的自动化成形加工,确保了加工和安装精度。
3.工艺模拟
针对较复杂、样式多样的构造部位,通过三维可视化工艺模拟交底可以更为精确地指导施工工艺,更加清楚的展现结构系统搭建,更为明确的展现各部分的衔接与施工的先后顺序,使现场与施工图纸保持高度一致性,减少返工和整改。
▲多曲面铝方通施工工艺模拟
4.定位安装
根据BIM模型提供的坐标数据,利用放样机器人,在现场把点位标示出来,指导工人进行铝方通构件的调平和连接,完成现场拼装。
▲多曲面铝方通定位安装
▲多曲面铝方通墙面实际拼装效果
奇信股份一直以来高度重视BIM技术的发展,BIM团队组建于2015年,致力于BIM技术的开发、应用和服务等工作,拥有多名经验丰富、专业齐备的技术工程师。BIM团队在投标、设计和施工等阶段提供BIM建模、虚拟仿真模拟、工程量精确统计、施工进度模拟、施工工艺模拟和三维管线综合等综合服务。除深圳国际会展中心装修工程应用BIM技术外,奇信股份还在援越南越中友谊宫项目装饰装修工程、深圳汇德大厦一期精装修专业分包工程、前海合作区哈罗国际学校精装修工程等多个项目中应用BIM技术,皆取得了优异成绩。
江西奇信集团股份有限公司 版权所有1995-2022 QIXIN GROUP CO.,LTD. 赣ICP备2023002879号
办公地址:深圳市南山区西丽街道曙光社区中山园路1001号TCL国际E城F5栋7F 电话:0755-88997888/88997999 传真:0755-25329777 法律声明|联系我们